
























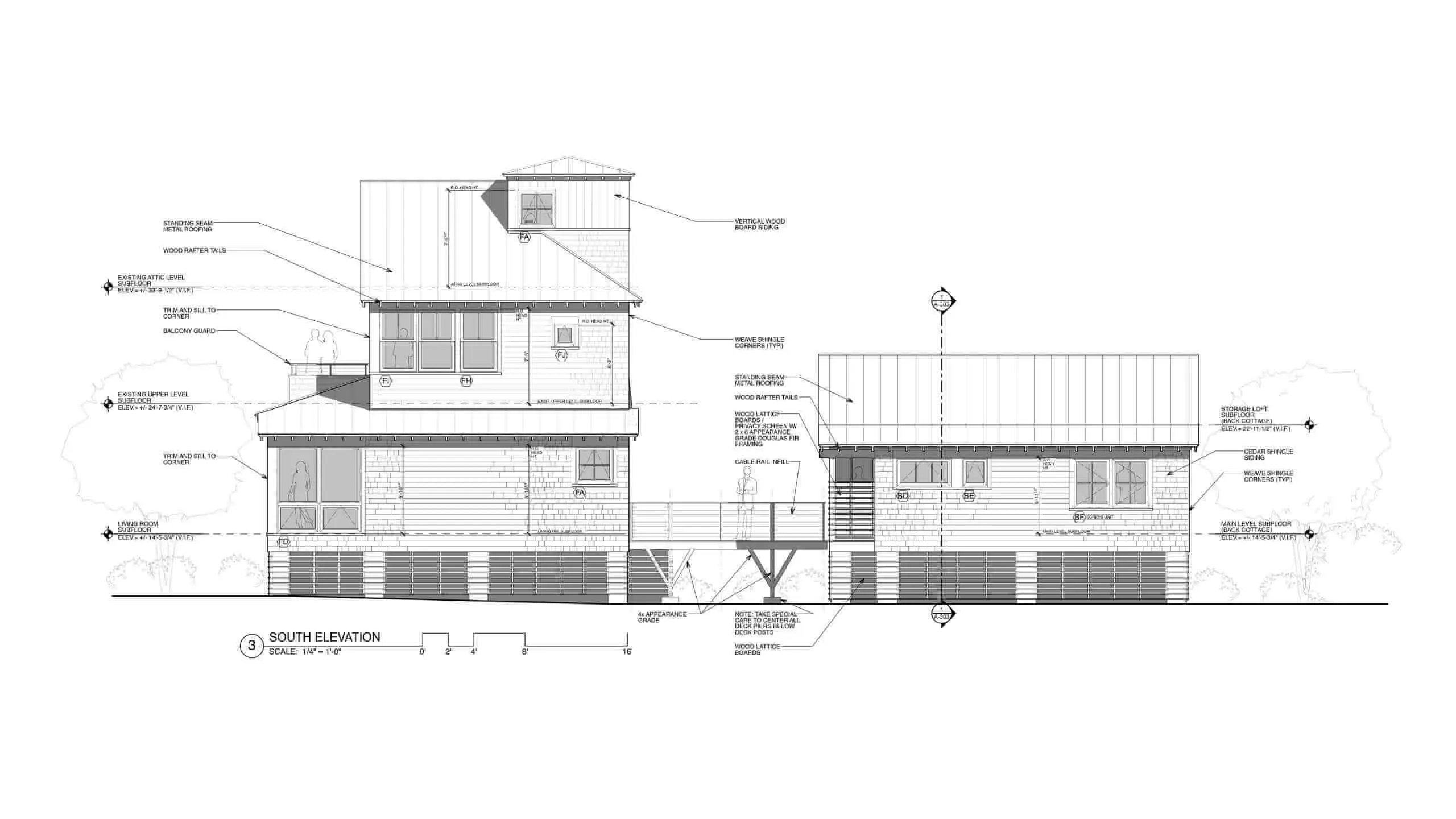
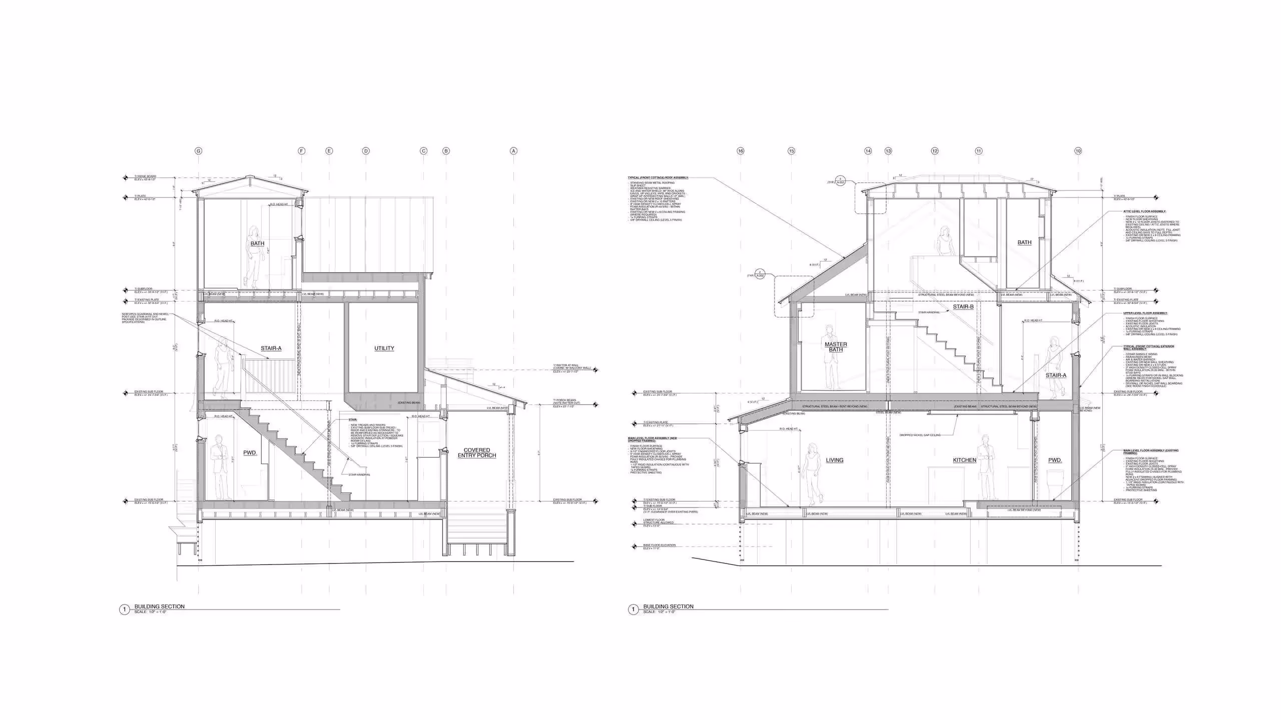
As longstanding summer visitors our clients had always desired a home of their own in this intimate beachfront neighborhood. When it became available they were happy to purchase a half-acre parcel that sat one house back from the water and included two circa 1920’s cottages.
Beyond the architectural challenges that existed, both the site and the two cottages were non-compliant with respect to current town zoning standards and recent coastal sand dune rules. As such our path to a preferred design solution included a lengthy, but necessary, permitting process. Collaborating closely with our clients and local regulatory authorities, we were able to craft a site-specific design solution that met the goals of all entities.
In the words of our client, the duo-cottages now better connect with, “tradition, family, and fun … to me that is inherent to Higgins Beach”.